As the city expands the boundaries are challenged. Residential areas shift scale and adaptation is required. This residential project is situated at the boundary between the rural countryside and city of Geneva.

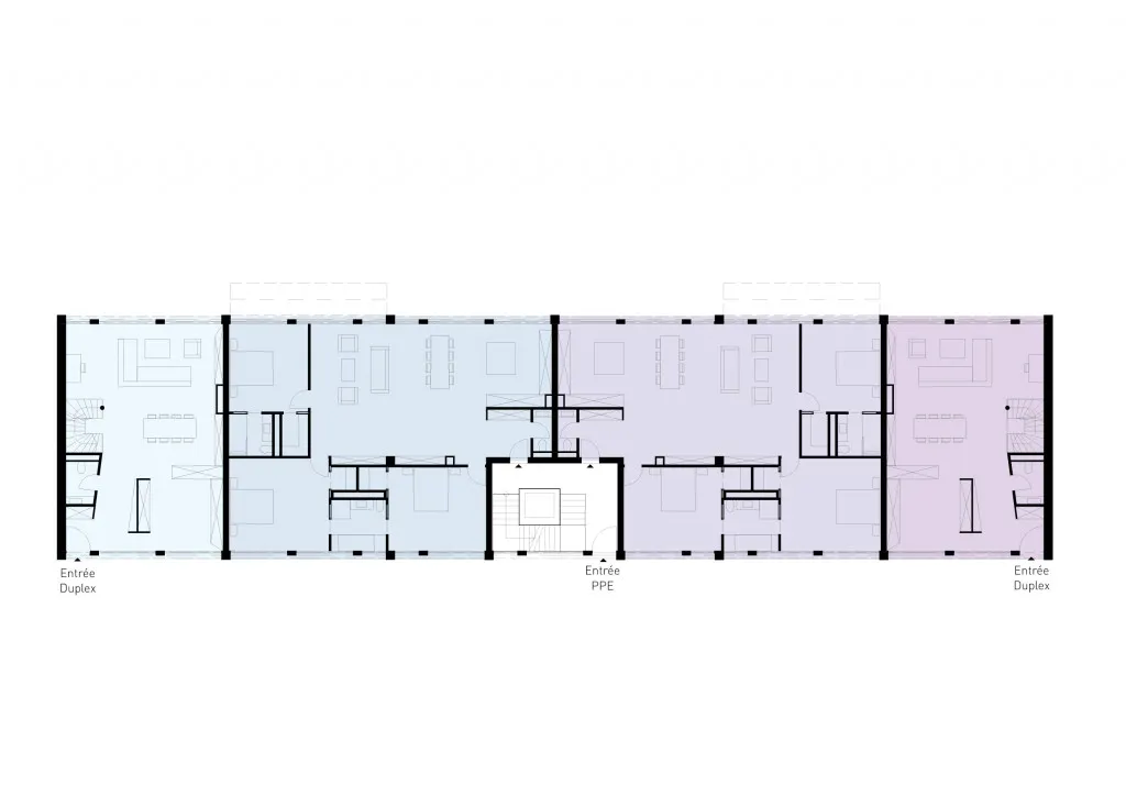
The residential block that is in the realm of the city is subjected to a careful composition with the elements that constitute the facade. The result is a united body that can effortlessly be customisable and appropriated by the various owners.





